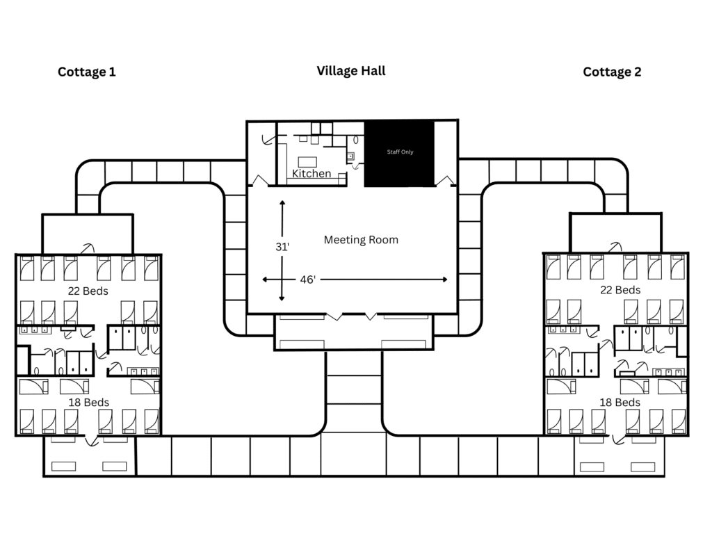
Cottage 1, Village Hall, Cottage 2
Cottages 1 and 2
- Each sleeps 40 (18 front/22 back) *Minimum guarantee is 50
- Two bathrooms
- Two sinks (each)
- Two showers (each)
- Two toilets (each)
Village Hall
- Kitchen (use fee $2.50 per person, per day with $100.00 minimum)
- Stove
- Refrigerator/freezer
- Microwave oven
- Double Oven
- Wi-fi in Village Hall meeting room
Items available upon request prior to arrival:
- Marker board/easel
- Projection screen
- Lectern
- Portable sound system
- Seats 120 lecture style or tables/chairs for 120
- Outdoor campfire (an additional fee)
Please note: linens and toiletries are not provided in the dorms.
*Trash bags and toilet paper provided.
Floor Plan





